Wilden Pump

Wilden Pump
 





产品目录Advanced™ 金属泵系列(螺栓式泵):P400 - 1 1/2" (38 mm) 金属泵



P400 - 1 1/2" (38.1 mm) 金属泵

威尔顿 P400 - 1 1/2" (38 mm) 金属泵 技术参数
口径:1 1/2"
最大流量:108.1GPM (408LPM)
最大工作压力:125PSI (8.6BAR)
接液部结构材质:铝合金、镍基合金、316不锈钢
干吸:17' (5.18m)
可通过最大颗粒:5/16" (8mm)
弹性体:丁晴橡胶、聚氨脂、氯丁橡胶、三元橡胶、
SaniFlex™、特氟龙®、氟化橡胶、Wil-Flex™
各种材质的温度范围
聚丙烯
0°C(32°F) ~ +79°C(+175°F)
碳充乙缩醛
-28.9°C(-20°F) ~ + 65.6°C(+150°F)
聚偏二氟乙烯
-12.2°C(-10°F) ~ + 107.2°C(+225°F)
特氟龙®PFA(½" UPII&UPIII)
-28.9°C(-20°F) ~ + 148.9°C(+300°F)
特氟龙®PFA(½" & 1½")
-28.9°C(-20°F) ~ + 107.2°C(+225°F)

用户手册下载(需安装Adobe Reader才能阅读)
P400-PV400-ADV-MTL-EOM.pdf     文件大小:2530 k




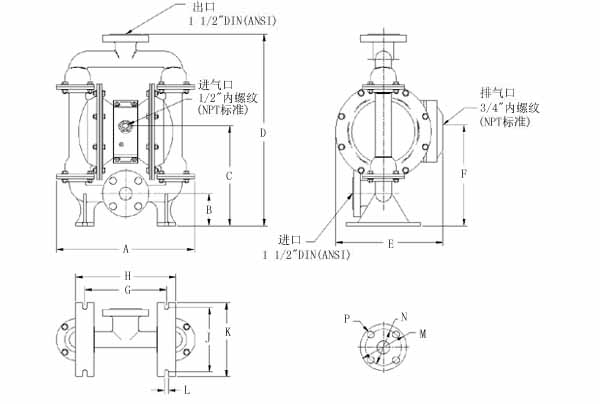
威尔顿 P400 - 1 1/2" (38 mm) 金属泵(不锈钢材质)结构图
尺寸 - P400
(金属泵)
序号公制(mm)英制(inch)
A38415.1
B893.5
C27710.9
D52820.8
E29511.6
F27710.9
G2248.8
H27410.8
J1787.0
K2038.0
L100.4
 DINANSI
M150 DIA.5.0 DIA.
N110 DIA.3.8 DIA.
P18 DIA.0.6 DIA.


威尔顿 P400 - 1 1/2" (38 mm) 金属泵(铝合金材质) 结构图
尺寸 - P400
(金属泵)
序号公制(mm)英制(inch)
A343.713 17/32
B79.53 1/8
C320.712 5/8
D530.120 29/32
E595.323 7/16
F120.74 3/4
G81.83 7/32
H126.212 27/32
J339.713 3/8
K285.011 7/32
L241.39 1/2
M152.48
N169.98 11/16
P11.17/16
 DINANSI
R55.0 DIA.1 15/16 DIA.
S75.0 DIA.2 1/2
T18.0 DIA.5/8 DIA.


威尔顿 P400 - 1 1/2" (38 mm) 金属泵 性能曲线图
阅读指导 确定您应用需要的流量,计算出总压头(扬程),作图画出纵坐标中压头和横坐标中流量的交叉点。于是供气气压和供气量可自曲线中获得。找出与交叉点最接近的红色曲线并沿着自左到右的纵坐标,这就是到达您在指定压头下所需流量时必须的供气压力。下一步在最接近交叉点处找到黑色曲线,并沿之向上,有一个数字指出,这数字表示在达到指定压头下所需的必须供气量。




产品系列 | 技术支持 | 销售网络 | 近期动态
产品搜索 | 关于我们 | 趣味游戏 | 联系我们 | 网站地图 | 返回主页






战略伙伴招募 :: 注册会员

Wilden Pump(威尔顿)中文网站由上海富晖友情维护 © 文字、图片版权归Wilden Pump所有
沪公网安备 31010802001246号     沪ICP备05031482号  电子证书    

在线技术咨询